Span Length

60′ 70′ 80′ 90′ 100′ 110′ 120′ Span Length BOX33 60′ - 85′ BOX39 65′ - 95′ BOX42 70′ - 105′ BOX48 85′ - 115′

Section Properties (gross)

Product Name Depth (in) Area (in2) Yb (in4) Ixx (in4) Iyy (in4) PLF @ 165
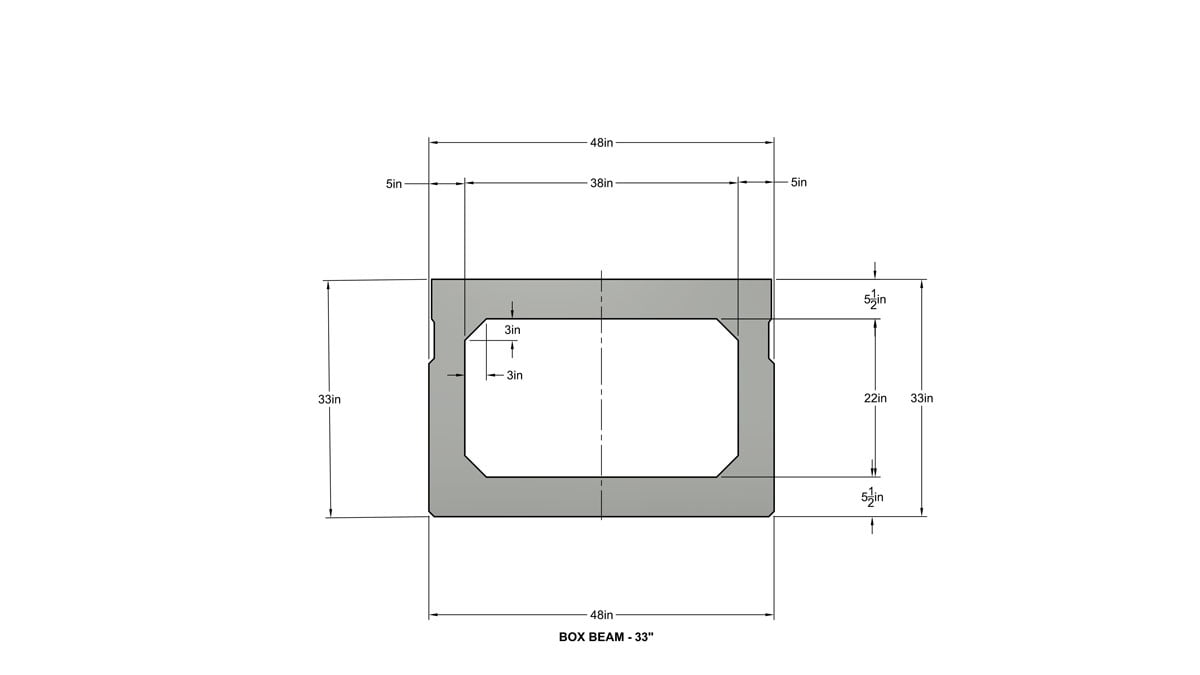
BOX33 33" 766 16.3 110483 203409 880
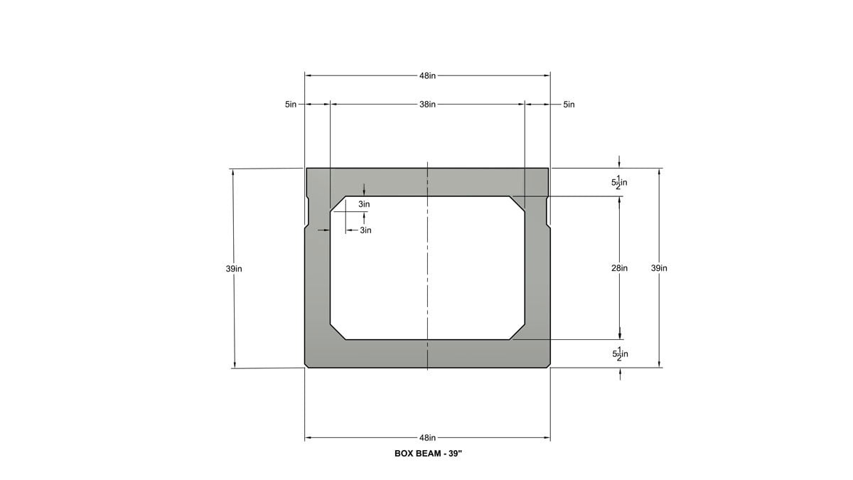
BOX39 39" 826 19.3 168706 231700 949
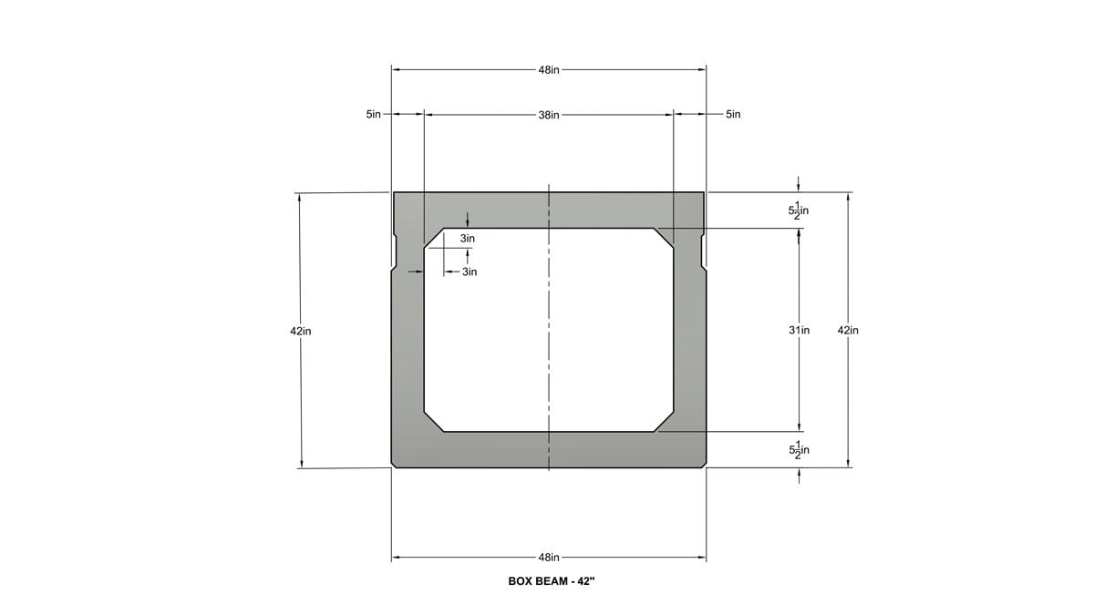
BOX42 42" 856 20.8 202877 243809 983
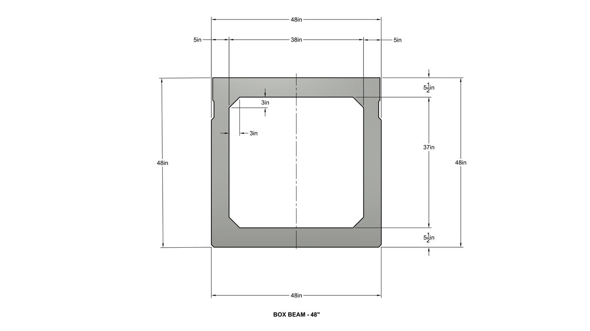
BOX48 48" 916 23 283292 271669 1052
image
image
image
image

Product Information

Standard box beam design is typically governed by the State, County or Agency design criteria. In the Pacific Northwest using a nominal 4′ wide box beam at depths of 33″, 39″, 42″ and 48″ provides the most cost effective use of the section.

image
image
image
image

Standard Design Options

  • Integral precast curb options are available.
  • Slab to Slab connectors: Tie Rods or Weldments
  • Available top of slab finishes: UHPC Driving Surface ready or roughened to receive overlay
  • Rail Post Anchor Connections
  • Utility hangers
  • Integrated abutment and wing wall packages
  • Recesses for bat crevices

3D Viewer

3D Viewer Tools

 

  • 3D Viewer Functions:
  • Move, Span, Zoom Assemblies
  • Isolate Single Components in View
  • Explode Assembly Single Components
  • Use Markup to Sketch Details
  • General Measurements for Concept
  • Print Views

Need More Info?

We Are Here to Help

 

Have a question, need a budget or detailed schedule?  Knife River sales team is ready to discuss precast solutions for your project.  Reach out to our staff below :

Image's Andy Roberts

Andy Roberts

Outside Sales, ID & MT

Image's Nikolaus Mixon

Nikolaus Mixon

Outside Sales, OR & CA

Image's Alex Sari

Alex Sari

Outside Sales, WA & AK